Kletterhalle

Die Kletterhalle „Jülicher Straße“ in Aachen ist mehr als nur ein Ort zum Klettern. Das natürliche Erlebnis des Kletterns wurde in einem Indoor-Setting mit einer sorgfältig ausgewählten Kombination aus Holz- und Stahlmaterialien zum Leben erweckt.
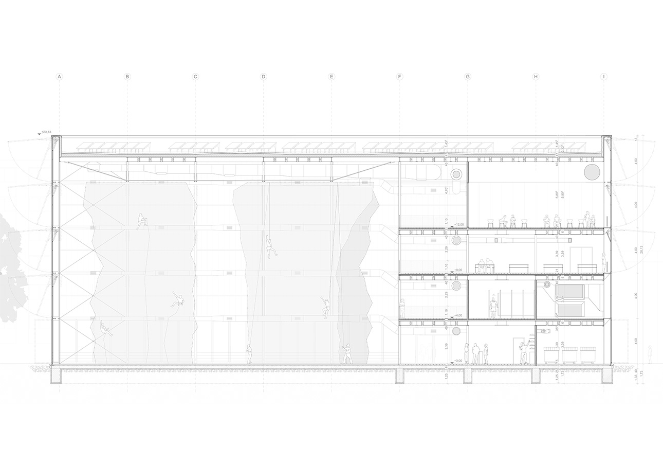
Das Polycarbonat der Fassade schützt die Kletterer vor ungewollten Blicken, lässt jedoch ein weiches, natürliches Licht in den Innenraum strömen. Im Inneren ist die Halle um einen zentralen Laubengang herum organisiert, der den Übergang zwischen den einzelnen Bereichen bildet. Neben der Hauptkletterfläche bietet die Halle eine Reihe von unterstützenden Räumen – von Umkleiden und Duschen im ersten Stock, über eine Kantine im zweiten Stock, bis hin zu einem Fitnessraum und Seminarraum im dritten Stock. Diese Räume tragen dazu bei, die Halle zu einem Ort zu machen, an dem man sich mit Freunden trifft, Zeit verbringt und sich wohlfühlt.
Das Gebäude steht leicht zurückgesetzt auf einem freien Platz und bildet einen Solitär, der sich trotz seiner Größe harmonisch in die Umgebung einfügt. Mit einer Fülle von Fahrradstellplätzen, einem Grünbereich und Solaranlagen auf einem grünen Dach ist die Kletterhalle nicht nur ein Ort für sportliche Betätigung, sondern auch ein Zeugnis für nachhaltiges und verantwortungsvolles Design.
Inspiriert von der Natur und dem Bedürfnis nach Gemeinschaft, bringt die Kletterhalle einen Ort zum Leben, der sowohl die physische als auch die soziale Seite des Kletterns feiert.











